922 E Manchester Dr
Springfield, MO 65810

Scroll to Content

Details

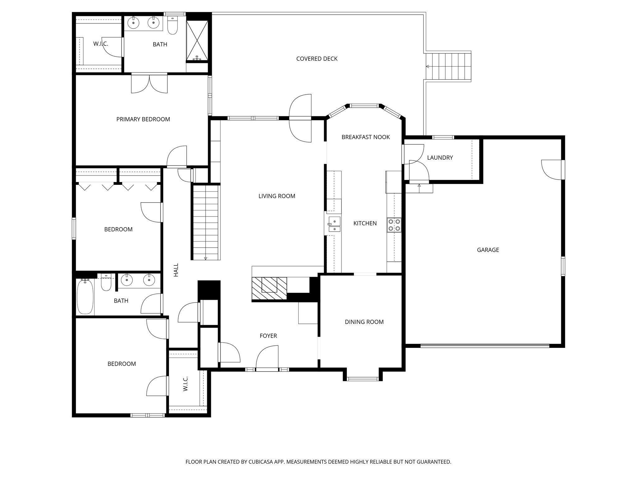
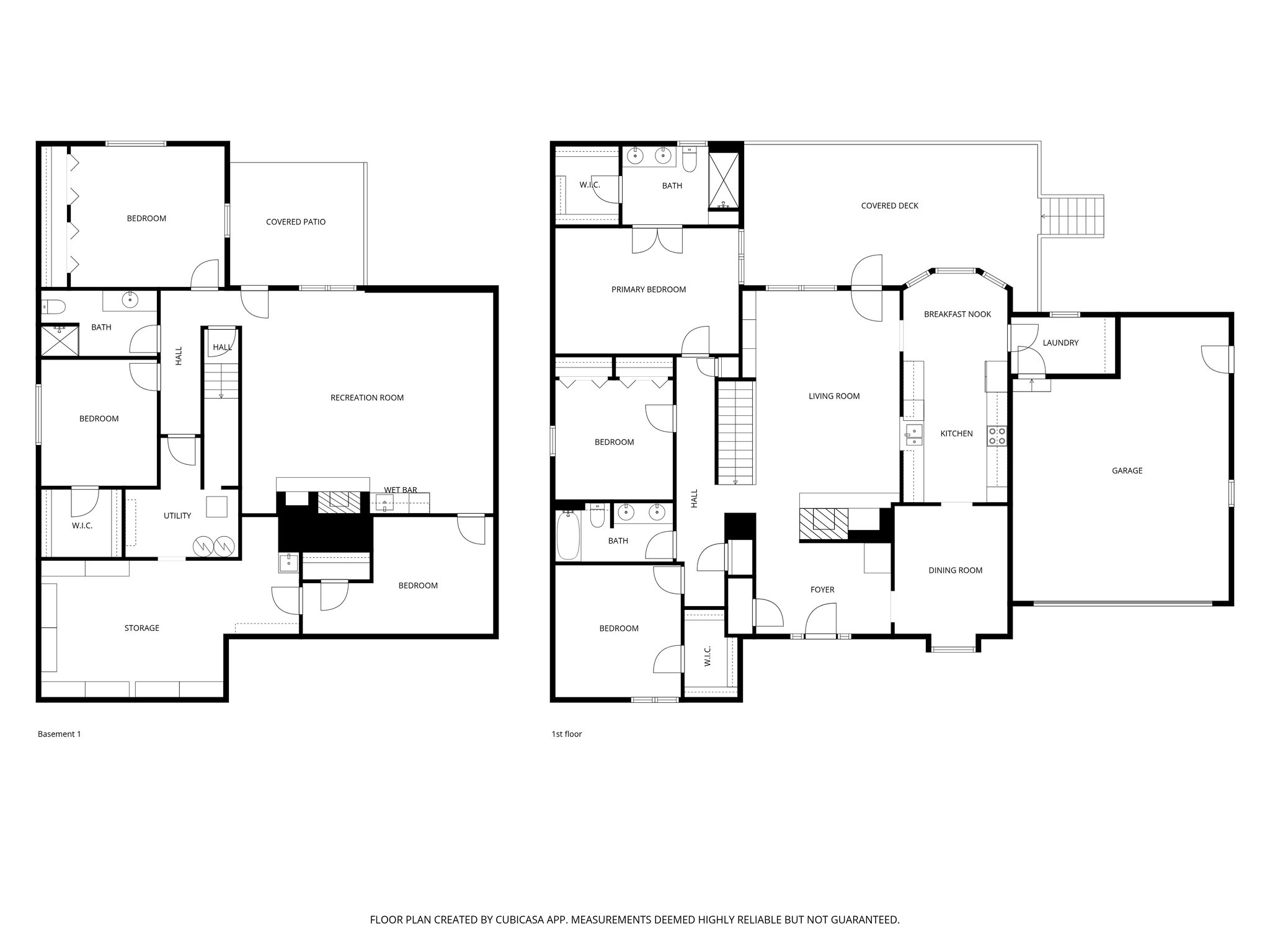
Located on a cul de sac in a sought after Springfield neighborhood, this spacious home offers a walk out basement, multiple living areas, and flexible space throughout. It's hard to fit everything this home offers into one description. Step inside to a welcoming entry with beautiful herringbone tile that opens into a spacious living room with vaulted ceilings, an exposed wood beam, built ins, hardwood floors, and a cozy pellet stove. The main level features three bedrooms and two full bathrooms, including a spacious primary suite featuring a private bathroom and a generous walk in closet. You'll also find a formal dining room with hardwood flooring, plus a kitchen with a dishwasher, stove, and refrigerator included, along with space for a dining table. Just off the kitchen is a large laundry room that leads to the oversized two car garage with extra space. The walk out basement adds even more living space with two additional bedrooms, a full bathroom between them, and a sixth non conforming room with a closet that could be used as a flex space, gym, playroom, bedroom, office, or additional storage. Downstairs also features a second living area with a wood burning fireplace and wet bar, plus a large storage room with built in shelving. Step outside to enjoy the large backyard deck, plus a newer shed for even more storage. Updates include a roof that's about 5 years old, a new 75 gallon hot water heater, a 90+ furnace that has been serviced yearly, and a whole home dehumidifier. And as an added bonus, residents can join the neighborhood pool for an optional fee. Homes with this much space and flexibility don't come along often. Come see it in person to truly appreciate everything it offers.

  • 5 Bedrooms
  • 3 Bathrooms
  • 3,863 Sq/ft
  • 2 Parking Spots
  • Built in 1978
  • MLS: 60317527

Images

Videos

Floor Plans

Contact

Feel free to contact us for more details!